Casa di corte in vendita

Verolavecchia, Vicolo S. Pietro
€ 34.000
3 locali 3 locali
80 Mq 80 Mq
1 bagno 1 bagno

Casa di corte in vendita

Verolavecchia, Vicolo S. Pietro

Descrizione annuncio

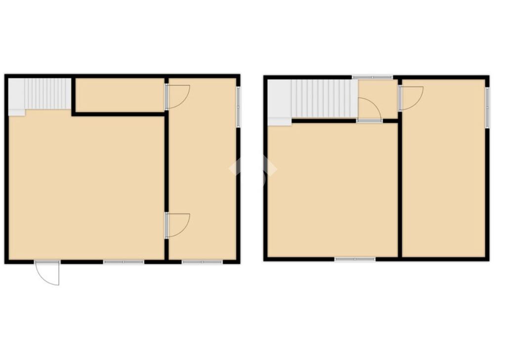
COSA SAPERE SULLA CASA: Verolavecchia - casa di corte da ristrutturare con posto auto privato.

UBICAZIONE E CONTESTO: L'immobile che proponiamo è ubicato in tranquilla e recente zona residenziale, possiamo raggiungere il centro del paese percorrendo soli 900 metri a piedi, dove troviamo i principali servizi che esso offre e la piazza in cui ogni sabato si svolge il mercato rionale. Ricordiamo inoltre che il paese offre servizio bus per i collegamenti dei paesi vicini.

PARTICOLARITA' E DESCRIZIONE: Casa di corte da ristrutturare, disposta su due livelli e inserita in un contesto tranquillo. Al piano terra si trovano un soggiorno, una cucina separata e un piccolo ripostiglio utile come spazio di servizio. La scala interna conduce al primo piano, dove si sviluppa la zona notte composta da due camere da letto: una matrimoniale e una camera singola.

Il bagno, esterno all’abitazione ma finestrato e già dotato di doccia e vasca, completa la funzionalità dell’immobile. All’esterno sono presenti inoltre un posto auto privato e una pratica rimessa.

Il proprietario si rende disponibile a effettuare alcune piccole opere di ristrutturazione prima della vendita, offrendo la possibilità di personalizzare l’abitazione secondo le proprie esigenze.

-
Ricerchiamo per la nostra agenzia, ragazzi da inserire come agenti immobiliari. Requisiti: età compresa tra 19 e 30 anni, diploma ed automuniti.


Ogni agenzia ha un proprio titolare ed e' autonoma - Le presenti informazioni non costituiscono elemento contrattuale.

Mostra tutto

Nelle vicinanze

Trasporto pubblico Trasporto pubblico
Verolanuova
Verolanuova
2,8 Km
Ricariche auto elettriche Ricariche auto elettriche
Verolavecchia Piazza Caccia | EnelX
350 m
GardaUno Comune di Verolanuova
2,1 Km
CONAD Verolanuova | EnelX
2,2 Km
Scuole Scuole
Scuola Secondaria di Primo Grado Ercole De Gaspari
2,1 Km
Scuola ITC Mazzolari
2,2 Km
Scuola Elementare
2,5 Km
Supermercati Supermercati
Penny Market
1,2 Km
Lidl
1,6 Km
Conad
2,2 Km
Italmark
2,5 Km
Negozi Negozi
Il Forno
2,4 Km
Bar Bar
Oasi Cafè
2,1 Km
La Bottega del Caffè
2,2 Km
Bar Giardino
2,7 Km
Ristoranti Ristoranti
Buona Pizza
1,3 Km
La Vecchia Filanda
2,1 Km
al Posticino
2,6 Km
Mostra tutto

Caratteristiche

Rif.:
61143734
Piano:
2 di 2 (Piano su più livelli)
Posti auto:
1
Camere da letto:
2
Arredamento:
Assente
Condizionamento:
Assente
Mostra tutto
Prezzo Prezzo
€ 34.000
Rata mutuo Rata mutuo
€ 160 / mese
Proponi il tuo prezzoProponi il tuo prezzo

Classe Energetica

G
G
G
G
G
G
G
G
G
Anno di costruzione:
1950
Riscaldamento:
Assente

Ti interessa visionare l'immobile?

Fissa un appuntamento  Fissa un appuntamento

Richiedi informazioni

Clicca su Leggi per aprire l'informativa
* Questi campi sono obbligatori

Calcola il tuo mutuo

Semplice e senza impegno
Anticipo

( % )
Mutuo

( % )

pochi semplici passi

inserisci i tuoi dati
Questionario completato
Grazie per aver richiesto un appuntamento senza impegno con un nostro Consulente del Credito e Assicurativo.

Hai inserito correttamente tutti i dati necessari e a breve riceverai una e-mail con un link da convalidare per inviare i tuoi dati.
Affiliato
Tecnomaison Srl
P.zza Malvestiti, 23 25028 Verolanuova (BS)

Il nostro staff


  • Claudio Dancelli
    Affiliato

  • Petra Baiguera
    Coordinatrice

  • Elisa Muja
    Collaboratrice

  • Davide Morbini
    Affiliato

  • Jaspret Saini
    Collaboratrice
P.zza Malvestiti, 23 25028 Verolanuova (BS)
Zona: Verolanuova - Verolavecchia - San Gervasio Bresciano
Mostra su mappa
Orari: 09.00/12.30-14.30/20.00Il sabato 09.00/12.30-14.30/18.00
Affiliato
Tecnomaison Srl
P.zza Malvestiti, 23 25028 Verolanuova (BS)

2025 Tecnocasa Franchising S.p.A. - P. IVA 08365160152 - Via Monte Bianco 60/A 20089 Rozzano (MI). Ogni agenzia ha un proprio titolare ed è autonoma. Privacy policy | Policy utilizzo | Cookie policy